Northland Plaza
4820 NORTHLAND DRIVE NW
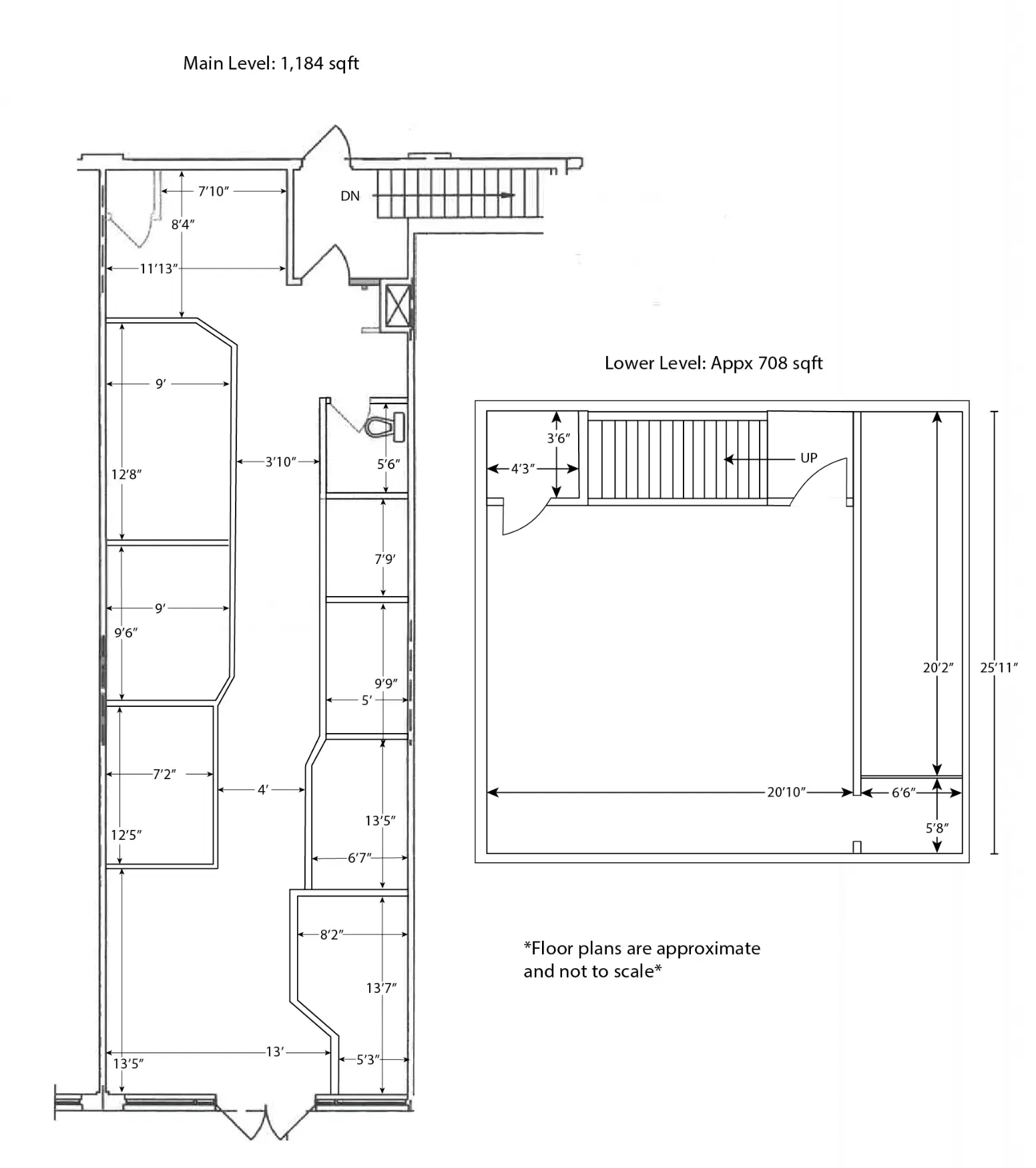
Status: Unit #307 Available (1,184 sf main floor retail + 708 sf lower level).
Download the brochure by clicking here.
Current Tenants:
Food Options
Bro’kin Yolk Express, Mary Brown’s Chicken, Taco Time, Prairie Mill Bread co., Panago Pizza, Menchie’s Frozen Yogurt
Retail
Petals ‘N’ Blooms, British Pantry
Services
Royal Bank of Canada, Beaner’s Fun Cuts for Kids, Purolator, Graceful Nails
Medical
Brentwood Dental Centre, Focused Optometry
Why Northland Plaza?
Northland Plaza is a well-known commercial development that is not only home to local and international businesses but also a community pillar for Northwest communities since 1994.
It’s also adjacent to major retailers and service providers, such as Walmart, Northland Village Mall, Northland Volkswagen, Northland Professional Centre, and RBC Royal Bank, as well as community-driven establishments like Winston Churchill High School, St. Luke’s Catholic Church, Nose Hill Library, and Hope Lutheran Church.
Within 3 kilometres, you’ll also find major necessary services like the Foothills Medical Centre and Alberta Children’s Hospital - as well as CF Market Mall, which drives traffic from all corners of Calgary.
We have a 1,184 SF retail space available in this premier shopping centre that is waiting to facilitate Calgary’s next successful hair salon, wellness centre, pharmacy, or another family-friendly business that will thrive in our Northland Plaza.
This centre is NOT suitable for any non-kid-friendly establishments (namely vape, tobacco, cannabis, tattoo, etc.)
More about Northland Plaza
Northland Plaza is located at the intersection of Northland Drive and Northmount Drive opposite Northland Village Mall and Walmart Supercenter. Centrally located in the affluent NW offering a unique mix of tenancies.
Northland Plaza was the birthplace of Certus Developments. The two founding partners acquired the property in 1994 with nothing but a promise from RBC to move into a 14,000 SF space in the main building. As one of the first developments in the area, efforts were put in to make it look as residential as possible. From there, the plaza flourished with everything from a local flower shop to the first Starbucks location in Calgary. The remarkable success that Northland has seen, sparked the nearly 25-year relationship that Certus is built on. Northland is the roots of this company, and will always have a special place in everyone’s hearts.
Are you looking for a different location? Contact us with any questions you may have.
Interested in becoming a tenant?
